Pawilon Emilia dawna siedziba Muzeum Sztuki Nowoczesnej, ikona modernizmu, która powróci jako oranżeria w Parku Świętokrzyskim.
- Pawilon Emilia, otwarty w 1970 roku, był wybitnym przykładem warszawskiego modernizmu, zaprojektowanym przez zespół Mariana Kuźniara.
- W latach 2012-2016 pełnił funkcję tymczasowej siedziby Muzeum Sztuki Nowocześnie, stając się ważnym miejscem na mapie kultury.
- W 2016 roku pawilon został wpisany do rejestru zabytków, co podkreśliło jego wartość architektoniczną i historyczną.
- Mimo statusu zabytku, w 2016 roku został rozebrany w związku z planami deweloperskimi, z obietnicą późniejszej rekonstrukcji.
- Historia Emilii stała się symbolem walki o zachowanie dziedzictwa architektonicznego modernizmu w Polsce.
- Obecnie trwają prace nad jego odtworzeniem w nowej lokalizacji w Parku Świętokrzyskim, gdzie ma pełnić funkcje kulturalne, w tym mieścić oranżerię.
Emilia: Puste miejsce, które wciąż budzi wielkie emocje
Kiedy myślę o Emilii, widzę nie tylko pustą przestrzeń, ale przede wszystkim wspomnienia i nadzieje, które wiążą się z tym miejscem. Jej historia to przykład tego, jak architektura może żyć własnym życiem, ewoluować i stać się czymś więcej niż tylko funkcjonalnym obiektem.
Perła modernizmu w sercu stolicy: narodziny ikony
Pawilon Meblowy "Emilia" został otwarty w 1970 roku i od razu stał się jednym z najbardziej rozpoznawalnych symboli warszawskiego modernizmu. Zaprojektowany przez wybitny zespół architektów Mariana Kuźniara, Czesława Wegnera, Hannę Lewicką i Leszka Klajnerta wyróżniał się na tle ówczesnej architektury. Jego przeszklone fasady, które wpuszczały do wnętrza mnóstwo naturalnego światła, oraz lekka konstrukcja dachu o charakterystycznym falistym kształcie, nadawały mu niezwykłą lekkość i elegancję. Przestronne, otwarte wnętrza idealnie nadawały się do prezentowania mebli, ale jak się miało okazać, były również doskonałym tłem dla sztuki. Dla mnie Emilia zawsze była przykładem, jak funkcjonalność może iść w parze z estetyką, tworząc obiekt, który na lata wpisał się w krajobraz miasta.
Jak salon meblowy stał się najważniejszą sceną sztuki nowoczesnej w Polsce?
Przez dziesięciolecia Emilia funkcjonowała jako salon meblowy, ale jej prawdziwy renesans, a zarazem transformacja w ikonę kultury, nastąpił w latach 2012-2016. To wtedy pawilon stał się tymczasową siedzibą Muzeum Sztuki Nowoczesnej w Warszawie. Ta zmiana funkcji była dla mnie osobiście niezwykle inspirująca. Nagle, w miejscu, gdzie jeszcze niedawno oglądało się sofy i stoły, zaczęto prezentować najbardziej awangardowe dzieła sztuki współczesnej. Ta metamorfoza nie tylko odmieniła wizerunek samego budynku, ale także wpłynęła na całą polską scenę artystyczną, udowadniając, że sztuka może i powinna być dostępna w niekonwencjonalnych przestrzeniach, blisko ludzi i zgiełku miasta.
Złote lata Emilii: wystawy, które zdefiniowały dekadę
Okres, gdy Emilia była domem dla Muzeum Sztuki Nowoczesnej, to były prawdziwe "złote lata". Odbyły się tam wystawy, które na długo zapadły w pamięć i ugruntowały pozycję pawilonu jako miejsca innowacyjnego i otwartego na dialog. Pamiętam, jak z entuzjazmem odwiedzałem każdą z nich, czując, że dzieje się tam coś naprawdę ważnego:
- "W sercu kraju" (2013): Ta wystawa, kuratorowana przez Joannę Mytkowską i Ankę Ptaszkowską, była próbą zdefiniowania polskiej sztuki współczesnej, pokazując jej różnorodność i złożoność. Była to dla mnie ważna refleksja nad tym, co znaczy być artystą w Polsce i jak sztuka odnosi się do naszej tożsamości.
- "Co widać. Polska sztuka dzisiaj" (2014): Prezentacja najnowszych trendów i twórców, która pokazała dynamiczny rozwój polskiej sceny artystycznej. Wystawa ta, moim zdaniem, doskonale oddawała ducha czasu i otwartości, jaką MSN wnosiło do Emilii.
- "Maria Bartuszová. Formy przejściowe" (2015): Retrospektywa słowackiej rzeźbiarki, która udowodniła, że Emilia potrafiła gościć również międzynarodowe gwiazdy, prezentując sztukę o uniwersalnym wymiarze i głębi.
- "Zofia Rydet. Zapis socjologiczny" (2015-2016): Monumentalny projekt fotograficzny Zofii Rydet, który w Emilii zyskał nową, niezwykle poruszającą oprawę, podkreślając jej zdolność do adaptacji do różnych narracji artystycznych.
Te i wiele innych wystaw sprawiły, że Emilia stała się synonimem "nowoczesnego, otwartego muzeum", miejscem, gdzie sztuka była dostępna, inspirująca i zawsze na czasie.

Kontrowersje i rozbiórka: Jak Emilia zniknęła z mapy Warszawy
Niestety, historia Emilii to nie tylko pasmo sukcesów i artystycznych triumfów. To także opowieść o konflikcie, który na długo podzielił Warszawę i stał się symbolem szerszej debaty o ochronie dziedzictwa modernizmu. Dla mnie, jako osoby zaangażowanej w dyskusje o rozwoju miasta, ten rozdział jest szczególnie bolesny, ale i pouczający.
Bitwa o Emilię: historia sporu, który poruszył całą Polskę
Kiedy w 2010 roku deweloper Griffin Real Estate (później Echo Investment) ogłosił plany budowy wieżowca w miejscu Emilii, wybuchł prawdziwy spór. Byłem wtedy świadkiem, jak pawilon, dotąd ceniony głównie przez architektów, nagle stał się symbolem. Aktywiści miejscy, historycy sztuki, architekci i mieszkańcy Warszawy zjednoczyli się w obronie Emilii, widząc w niej nie tylko piękny budynek, ale i ważny element tożsamości miasta. Kulminacją tych działań było wpisanie pawilonu do rejestru zabytków w 2016 roku, co miało zapewnić mu ochronę prawną. Niestety, mimo tego statusu, deweloper uzyskał zgodę na demontaż obiektu, obiecując jego późniejszą rekonstrukcję w innej lokalizacji. Decyzja ta, podjęta w 2016 roku, była dla wielu z nas ogromnym rozczarowaniem i pokazała, jak trudna bywa walka o zachowanie dziedzictwa w obliczu interesów komercyjnych.
Obietnica rekonstrukcji: co stało się z elementami rozebranego pawilonu?
W 2016 roku pawilon Emilia został rozebrany. To był widok, który ściskał serce ikona modernizmu znikała kawałek po kawałku. Na szczęście, zgodnie z obietnicą, elementy konstrukcyjne, w tym charakterystyczne stalowe kratownice dachu i fragmenty fasady, zostały zdemontowane z niezwykłą precyzją i pieczołowitością, a następnie zabezpieczone i przechowywane w magazynach. Proces ten był jednak naznaczony licznymi opóźnieniami i wyzwaniami logistycznymi. Przez lata los Emilii wisiał w powietrzu, a ja, podobnie jak wielu innych, z niepokojem zastanawiałem się, czy obietnica rekonstrukcji kiedykolwiek zostanie spełniona. To oczekiwanie było testem cierpliwości i wiary w to, że wartościowe dziedzictwo nie zostanie zapomniane.
Symbol walki o dziedzictwo: dlaczego obrona Emilii była tak ważna?
Dla mnie historia Emilii to coś więcej niż tylko przypadek jednego budynku. To symbol walki o zachowanie dziedzictwa architektonicznego modernizmu w Polsce, który przez lata był niedoceniany, a często wręcz dewastowany. Spór wokół Emilii uświadomił wielu, że powojenna architektura ma ogromną wartość historyczną i artystyczną, a jej ochrona jest równie ważna, jak ochrona starszych zabytków. Konflikt między interesem komercyjnym a ochroną dóbr kultury, który tak wyraźnie zarysował się w przypadku Emilii, stał się punktem zwrotnym w myśleniu o planowaniu urbanistycznym w Polsce. Pokazał, że społeczeństwo jest coraz bardziej świadome wartości swojego otoczenia i gotowe do walki o nie. To była ważna lekcja dla wszystkich dla deweloperów, dla władz miasta i dla samych mieszkańców.

Nowe życie starej Emilii: Jaka przyszłość czeka odtworzony pawilon?
Po latach niepewności i oczekiwania, wreszcie pojawiają się konkretne plany dotyczące przyszłości Emilii. Widzę w tym szansę nie tylko na odzyskanie cennego obiektu, ale także na wzbogacenie przestrzeni publicznej Warszawy. To dla mnie ekscytujący moment, bo oznacza, że wysiłki wielu ludzi nie poszły na marne.
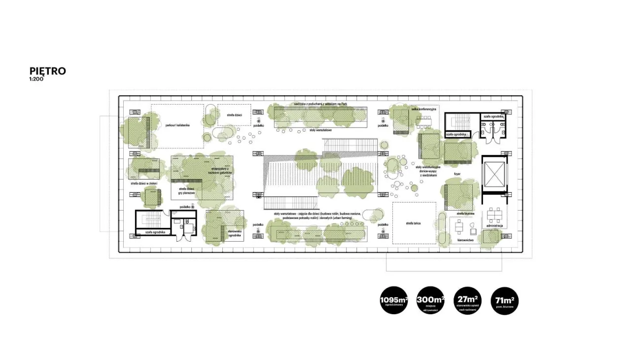
Od muzeum do oranżerii: nowa funkcja w nowym miejscu
Odtworzony pawilon Emilia ma zyskać nowe życie i nową funkcję, a także nową lokalizację. Zgodnie z planami, obiekt stanie w pobliżu Pałacu Kultury i Nauki, stając się integralną częścią kompleksu Parku Świętokrzyskiego. Ta zmiana lokalizacji jest dla mnie bardzo obiecująca, bo wpisuje Emilię w szerszy kontekst zielonej przestrzeni w samym sercu miasta. Co więcej, pawilon ma pełnić funkcje kulturalne, w tym mieścić oranżerię oraz przestrzeń wystawienniczą. Wyobrażam sobie, jak pięknie będzie wyglądać, łącząc modernistyczną architekturę z zielenią roślin, tworząc unikalne miejsce relaksu i obcowania ze sztuką. To będzie z pewnością atrakcja, która wzbogaci ofertę kulturalną Warszawy i przyciągnie zarówno mieszkańców, jak i turystów.
Wyzwania rekonstrukcji: czy uda się wiernie odtworzyć modernistyczny projekt?
Proces rekonstrukcji pawilonu Emilia to jednak nie lada wyzwanie. Pamiętam, jak wiele dyskutowało się o tym, czy uda się wiernie odtworzyć modernistyczny projekt, zachowując jego oryginalny charakter i duszę. Na szczęście, przechowywane elementy konstrukcyjne stanowią solidną podstawę do odtworzenia obiektu z dużą precyzją. Współczesne technologie budowlane dają nam możliwości, których nie mieliśmy kilkadziesiąt lat temu, co pozwala na dokładne odwzorowanie detali i materiałów. Kluczem będzie jednak nie tylko techniczna wierność, ale także zrozumienie ducha modernizmu, który cechował Emilię. Wierzę, że z odpowiednim podejściem i dbałością o szczegóły, uda się przywrócić pawilon w jego dawnej świetności, a nawet wzbogacić go o nowe, współczesne rozwiązania.
Emilia w Parku Świętokrzyskim: jak zmieni się centrum Warszawy?
Odtworzenie Emilii w Parku Świętokrzyskim to dla mnie nie tylko powrót jednego budynku, ale także szansa na znaczące wzbogacenie krajobrazu i funkcji centrum Warszawy. Nowy obiekt, połączony z zielenią parku, może stać się nowym punktem orientacyjnym i miejscem spotkań. Wierzę, że Emilia, w swojej nowej odsłonie, będzie katalizatorem dla dalszych zmian w tej części miasta, zachęcając do spędzania czasu na świeżym powietrzu i korzystania z oferty kulturalnej. To może być impuls do stworzenia bardziej spójnej i atrakcyjnej przestrzeni publicznej, która będzie służyć mieszkańcom i podkreślać nowoczesny charakter stolicy, jednocześnie szanując jej historyczne dziedzictwo.
Emilia jako wspomnienie: Co straciliśmy, a co możemy odzyskać?
Historia Emilii to dla mnie lekcja o tym, jak ważne jest docenianie i ochrona dziedzictwa, zanim będzie za późno. To także przypomnienie o sile wspomnień i emocji, które potrafią nadać budynkom wyjątkowe znaczenie. Patrząc wstecz, zastanawiam się, co straciliśmy bezpowrotnie, a co możemy jeszcze odzyskać.
Fenomen "muzeum w Emilii": dlaczego to miejsce było tak wyjątkowe?
Dla wielu warszawiaków i miłośników sztuki, w tym dla mnie, Emilia stała się "synonimem nowoczesnego, otwartego muzeum". Ten fenomen wynikał z kilku czynników. Po pierwsze, jej modernistyczna architektura, z otwartymi przestrzeniami i dużą ilością światła, tworzyła idealne tło dla sztuki współczesnej, pozwalając na swobodne aranżacje i eksperymenty. Po drugie, tymczasowy charakter siedziby sprawiał, że Muzeum Sztuki Nowoczesnej w Emilii było miejscem dynamicznym, ciągle się zmieniającym, pełnym energii. Nie było obciążone ciężarem stałej kolekcji, co pozwalało na większą elastyczność w programie wystawienniczym. Wreszcie, lokalizacja w sercu miasta, w nieformalnym i dostępnym pawilonie, sprawiła, że sztuka stała się bliższa ludziom. To wszystko sprawiło, że Emilia budzi tak silne wspomnienia i nostalgię była miejscem, gdzie sztuka żyła i oddychała razem z miastem.
Przeczytaj również: Muzeum Sztuki Nowoczesnej w Warszawie (2026): Przewodnik po nowej siedzibie
Dziedzictwo architektoniczne i kulturowe: trwała lekcja płynąca z historii pawilonu
Dziedzictwo pawilonu Emilia jest wielowymiarowe. W aspekcie architektonicznym to wybitny przykład warszawskiego modernizmu, który zasługuje na ochronę i promocję. Jego historia pokazuje, jak zmieniało się podejście do powojennej architektury od niedoceniania, przez walkę o zachowanie, aż po nadzieję na rekonstrukcję. W aspekcie kulturowym Emilia to świadectwo dynamicznego rozwoju polskiej sztuki współczesnej i roli, jaką może odegrać tymczasowa przestrzeń wystawiennicza. Ale przede wszystkim, historia Emilii to trwała lekcja dla nas wszystkich w kontekście ochrony dziedzictwa i planowania urbanistycznego w Polsce. Uczy nas, że wartość budynków nie zawsze jest oczywista na pierwszy rzut oka, że warto walczyć o zachowanie przeszłości dla przyszłych pokoleń i że dialog między deweloperami, władzami a mieszkańcami jest kluczowy dla harmonijnego rozwoju miasta. Mam nadzieję, że odtworzona Emilia będzie nie tylko piękną oranżerią, ale także żywym pomnikiem tej ważnej lekcji.
